濟南市鴻慷機電設備有限公司位于交通便利的泉城濟南,是全球生產滾動軸承和直線運動產品的領導企業---德國舍弗勒集團在山東的授權代理商。公司專營舍弗勒集團旗下兩大品牌INA軸承和FAG軸承,是一家順應經濟發展需要而誕生的專業化新型高端軸承公司。多年來一直從事軸承的銷售和售后技術支持,在機械行業技術方面有著非常豐富的經驗,今天濟南鴻慷機電進口軸承專家為大家介紹一下精密軸承在高速精密主軸設計中的應用。

主軸軸承是決定主軸單元工作性能的重要元件,主軸系統剛度、承載能力、主軸高速性能、溫升性能、振動與噪聲等都與精密軸承有關。
1 精密主軸選型與配置
軸承種類的選擇應根據主軸技術指標,并考慮其經濟性和技術復雜性,在流體軸承和滾動軸承中選擇合適的軸承種類。
軸承選型與配置的依據是主軸系統受力特性及主軸技術指標要求。軸承選型與配置實際上是根據技術指標,在剛度要求、轉速要求、負載大小、主軸結構設計對空間要求中求得平衡來進行軸承選型與配置。
高速機床主軸軸承一般有角接觸軸承、圓柱滾子軸承和雙向角接觸軸承等幾種形式。對于高速輕載型高速主軸,前后支承一般選用角接觸軸承。
高速主軸用角接觸軸承其接觸角主要有 15°和25°兩種。15°接觸角的軸承高速性較好,但軸向承載能力和剛度較低。通常,15°接觸角的角接觸球軸承多用于磨床、銑床和高速加工中心主軸。
高速主軸用滾動軸承其滾珠有鋼珠與陶珠兩種形式,陶瓷滾動軸承與同規格、同精度的鋼質軸承相比,其速度可提高 20%,溫升降低 35% ~ 60%,壽命可提高 3 ~ 6 倍,陶瓷軸承的剛性較高,對內、外圈溫差不敏感,運轉中預緊力的變化也較小。因此在現代數控機床高速主軸中,陶瓷球軸承得到了廣泛的應用。
2 高速主軸單元支承結構設計
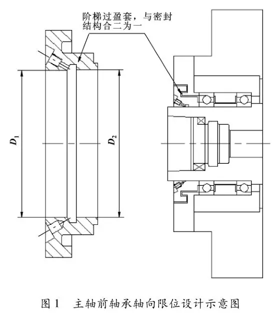
軸承限位方式及其限位元件直接影響到主軸單元總體精度指標,同時軸向限位元件也是保證軸承預緊力的重要元件之一。
在現代數控機床主軸單元設計中,軸承軸向限位元件常用的有精密鎖緊螺母和階梯過盈套。
采用精密螺母方式安裝相對簡單,但對主軸螺紋部分加工精度要求高,因螺紋聯結本身是一種動不平衡因素,這將影響主軸動平衡性能。因此這種結構形式一般多用于 8 000 r/min 以下的機械式主軸。
對于更高轉速的主軸,其動平衡精度要求極高。
為保證動平衡精度,軸承軸向限位元件通常選用階梯過盈套。這樣不需在主軸上加工螺紋,容易保證過盈套的定位端面與軸心線垂直,主軸動平衡性好。但采用這種方式安裝拆卸都需要根據主軸形式設計相應的專用工藝裝備,其安裝拆卸復雜,要求高。

如圖 1 所示,該主軸設計中,前、后軸承軸向限位元件都采用了階梯過盈套的形式,這樣有利于提高主軸動平衡性能。階梯過盈套內徑軸向分為二段,內徑分別為 D 1 和 D 2 (二者相差較小),與之相配合的軸外徑也相應分為 d 1 和 d 2 二段,這二段過盈都為過盈配合,但過盈量略有不同。安裝時須用熱裝方式完成安裝,拆卸時,在過盈套注軸孔處接一高壓油泵將階梯過盈套漲開即可將階梯過盈套取下來。但在使用定壓式預緊時,確定彈簧力的大小、結構設計、裝配都較復雜。對成組彈簧的制造要求高,在裝配前一般應使用專門的彈簧測力裝置對成組彈簧剛度與長度的一致性進行檢查; 在設計中確定彈性力的大小時應充分考慮負荷大小、主軸質量、軸承本身預緊力大小等各種因素。

4 高速主軸單元潤滑技術
高速主軸設計中,軸承潤滑技術是至關重要的一環,潤滑與主軸高速性能、溫升、主軸成本、可維修性等都有密切關系。
高速主軸一般采用的潤滑方式有脂潤滑、油 - 氣潤滑等方式。高速主軸設計中,應在保證技術指標的前提下選擇最為經濟的潤滑方式。
脂潤滑是一次性永久潤滑,不需任何附加裝置和特別維護,但其溫升較高,允許軸承工作的最高轉速較低,一般 Dn 值在 1. 0 ×10 6 以下。其特點是結構簡單,使用方便,無污染,通用性強,成本低。脂潤滑關鍵技術點是選擇正確潤滑脂以及確定合理的潤滑脂注入量。
油 - 氣潤滑是一種新型的、較為理想的方式,它利用分配閥對所需潤滑的不同部位,按照其實際需要,定時 (間歇)、定量 (最佳微量) 地供給油 - 氣混合物。使軸承總是形成良好的潤滑條件,油 - 氣潤滑的壓縮空氣同時兼具冷卻作用,因而可使主軸軸承Dn 值更高,可達 2 × 10 6 。油 - 氣潤滑對潤滑油、壓縮空氣、供油管路設計具有嚴格的技術要求,其調試參數 (流量、時間間隔、壓縮空氣壓力等) 現在并無成熟的理論或定量確定方法,調試比較麻煩。
5 結論
高速精密主軸是現代高性能數控機床的核心功能部件之一,而精密軸承技術是高速精密主軸設計中的核心技術之一,作者對高速精密主軸設計中所涉及的高速精密軸承選型與配置、高速主軸單元支承結構設計、主軸軸承預緊、高速主軸單元潤滑技術等關鍵技術問題進行了論述,對各種高速精密主軸設計具有參考價值。
如果您對山東進口軸承、FAG軸承、INA軸承感興趣或者有疑問的話,請點擊聯系我們網頁右側的在線客服,或致電:400-086-9890,山東進口軸承供應商——您全程貼心的采購顧問。
——責任編輯:濟南鴻慷機電設備公司01銷售顧問
版權所有www.showa1.com.cn(濟南鴻慷)轉載請注明出處
